Объявление 221-11805

Екатеринбург, ВИЗ, ул. Татищева, 56
Тип объявления Продажа
Количество комнат 3
Район ВИЗ
Этаж 15
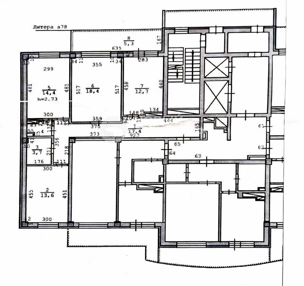
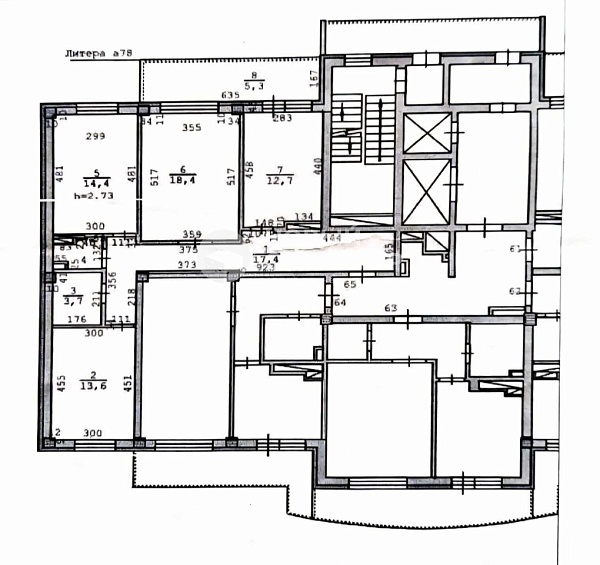
Общая площадь 82.1 м2
Этажность 17
Жилая площадь 46.6 м2
Площадь кухни 12.7 м2
Балкон лоджия
Санузел раздельный
Вид из окон Во двор
Ремонт Косметический
Состояние хорошее
Тип дома монолит
Год постройки дома 2012
Высота потолков в метрах 2.7
 

Продает просторная, светлая Трехкомнатная квартира для большой дружной семьи!!!! - 3 изолированные комнаты (18.4 м2, 14.4м2 и 13,6 м2) комнаты правильной формы, вместительная кухня 12.7 м2, шикарная теплая лоджия 6м2, раздельный сан.узел; - ухоженный, закрытый двор с детской и спортивной площадкой; - много парковочных мест во дворе, так же есть подземный паркинг; - в шаговой доступности : школы, гимназии и детские сады, одна из лучших больниц № 33, №11; - Верх-Исетский пруд, парк 22 Партсъезда; - рядом остановки общественного транспорта, транспортная развязка в разные концы города; - до центра города 6 минут; - идеальное месторасположение дома, транспортная доступность в любую точку города (с помощью развязок и выезда на ЕКАД); - развитая инфраструктура района (магазины, аптеки, поликлиники, детские сады, школы, высшие учебные заведения, рестораны, торговый центры, кинотеатры, спортзалы и пр.); Звоните и записывайтесь на просмотр! Не откладывайте свой звонок на завтра, ведь завтра ее может купить уже кто-то другой! РАДЫ ПОМОЧЬ РЕШИТЬ ЛЮБОЙ ВОПРОС С НЕДВИЖИМОСТЬЮ! - ID объекта в нашей базе: 11805

Ваш персональный менеджер

Если у вас появились вопросы, напишите нам!