Объявление 221-11859

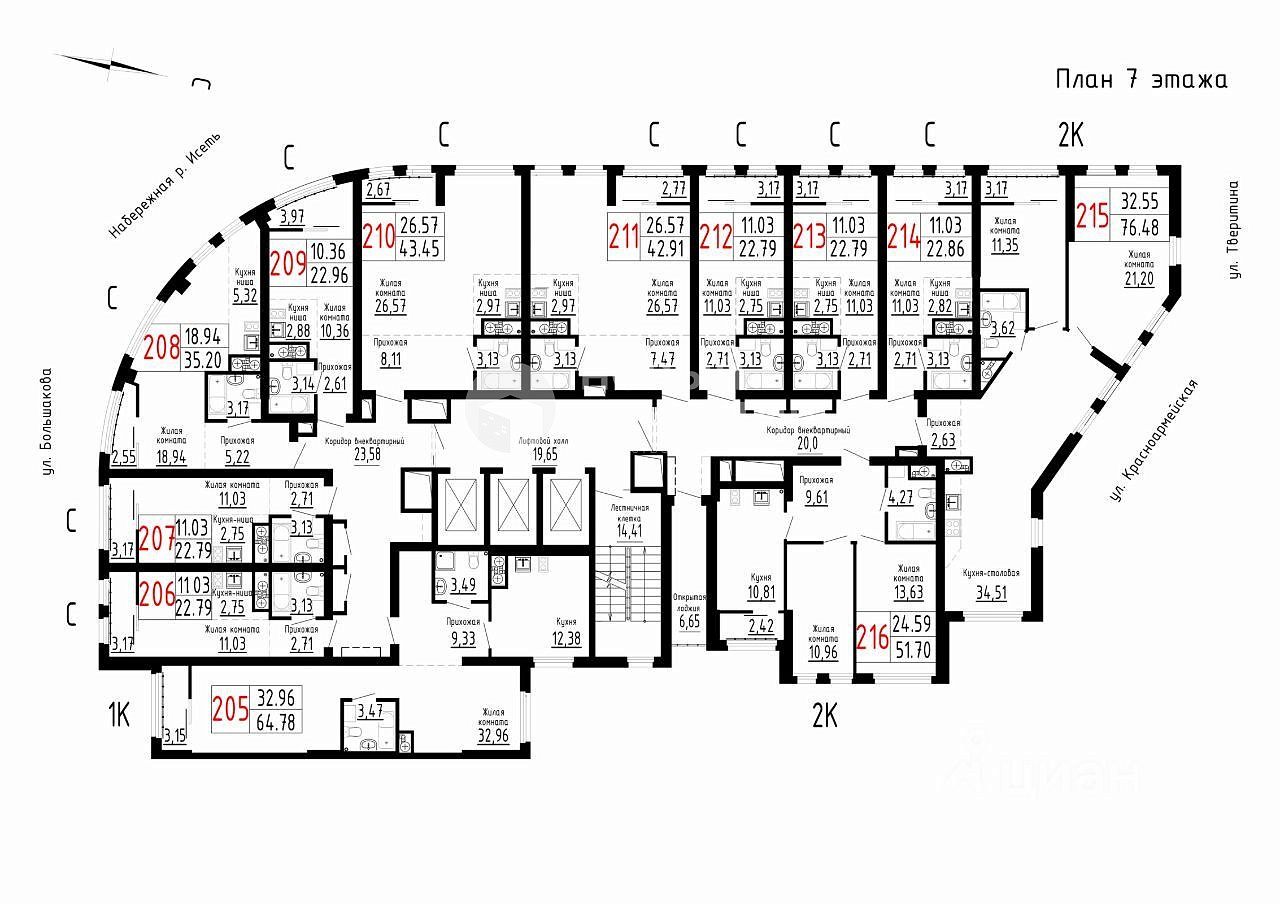
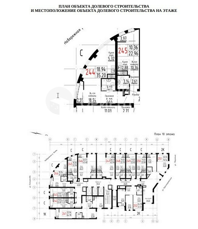
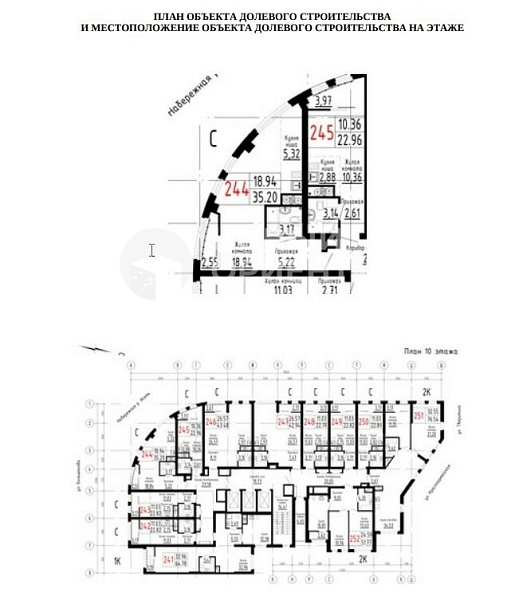
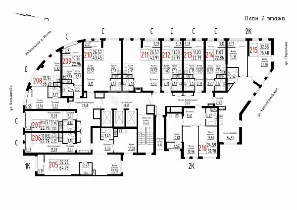
Количество комнат 1
Этаж 10
Общая площадь 36.5 м2
Этажность 25
Жилая площадь 20.5 м2
Площадь кухни 6.5 м2
Балкон лоджия
Санузел раздельный
Вид из окон Во двор
Тип дома кирпично-монолитный
 

Центр города - набережная р. Исеть! Квартира (№ 244) в ЖК Бизнес-класса «ЛУВР» в тихом центре на берегу Нижнеисетского пруда! У застройщика больше таких квартир нет! ЖК ЛУВР –лучшая локация города с собственным парком и садом. Свой выход на благоустроенную набережную! Самое лучшее расположение на этаже! Потрясающий вид с 10 этажа на парк и набережную реки. Панорамное остекление по всей квартире. Идеальный вариант для красивой жизни и как инвестиционный проект! В ЖК своя газовая котельная. Передача ключей 3 квартал 2026 года. Концепция комплекса включает в себя все атрибуты бизнес-класса! На крыше дома будет располагаться spa-центр, фитнес-зал и бассейн. Кафе и зона отдыха! Продажа по уступке от собственника физлица. Обременений никаких! ID объекта в нашей базе: 11859

Ваш персональный менеджер

Если у вас появились вопросы, напишите нам!