Объявление 221-11142

Кочневское, ул. Ударников, 42
Тип объявления Продажа
Категория объекта коттедж
Количество комнат 6
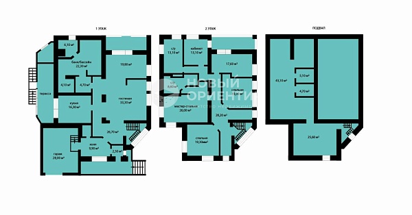
Общая площадь 410.2 м2
Этажность 2
Площадь участка 25 сот.
Балкон 2 балкона
Состояние хорошее
Категория земель Поселения (ИЖС)
Удобства Электричество, Канализация, Отопление
 

Продам отличный, полностью благоустроенный, готовый к заселению коттедж в с.Кочневское,Белоярский район.Площадь дома 410 кв.м.. Дом кирпичный 2 этажа(1й этаж : веранда, прихожая, зал, кухня с верандой. баня с бассейном и комнатой отдыха,2й этаж: 4комнаты и кабинет) ,плюс цокольный этаж(котельная, спорт зал, мастерская ), 1996 года , строился с любовью для себя. В доме центральное водоснобжение, газифицирован, отопление, канализация септик. участок полностью разработан 25соток прекрасного сада с плодовыми деревьями , есть бассейн,места для отдыха и зона барбекю. Хорошо развита инфраструктура есть - школа, детский сад, магазины, столовая, парикмахерская, своя поликлиника с аптекой, почта, банкоматы, храм. Электричка, 4 раза в день ходит автобус до Екатеринбурга. Звоните , рассмотрим любые варианты приобретения ID объекта в нашей базе: 11142

Ваш персональный менеджер

Если у вас появились вопросы, напишите нам!